Den nye flerbrukshallen vil gjøre det lettere å tilby gode aktivitetstilbud i lokalområdet. På dagtid kan hallen brukes av skoleelever.
Grüner Fotball er med i hele prosessen. Vi deltar i møter og diskusjoner, og jobber for å ivareta fotballens interesser i forbindelse med byggingen. Våre representanter i arbeidet er Torgny Hasås og Walter Haugland.
Om hallen
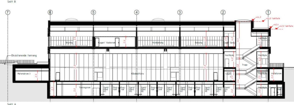
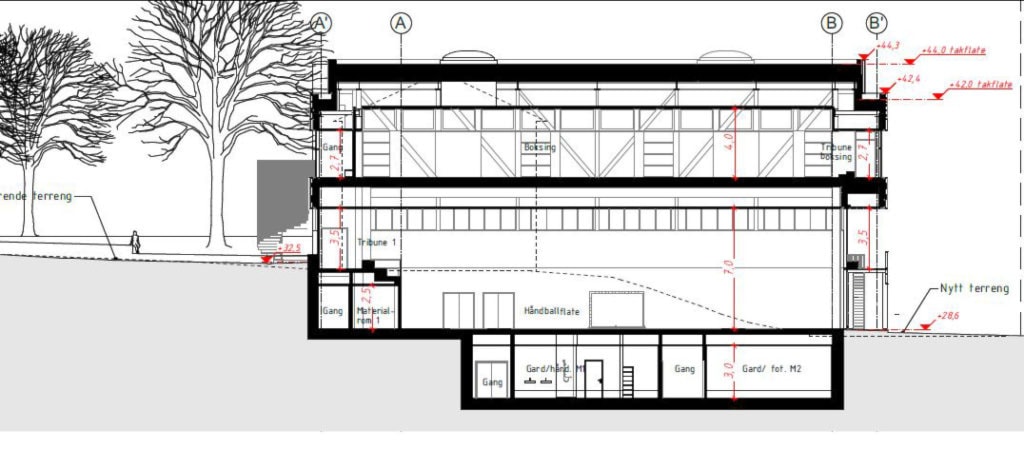
Dælenenga flerbrukshall skal være et anlegg med en fullskala idrettshall på 45×25 meter, med mulighet for inndeling i tre spilleflater. Hallen har tribuneanlegg, tilhørende lagerrom og garderobeanlegg.
Anlegget lages for bruk av ulike aktiviteter og idretter, og skal romme arealer for kampidretten, samt klubbhusmiljø for fotballen med eget garderobeanlegg. I tillegg får hallen styrketreningsrom, kontorer og møterom.
Uteområdene ved hallen skal også bygges om, med gode muligheter for opphold og aktiviteter.
Hallen skal bestå av tre etasjer pluss kjeller.
- I første etasje, på nivå med fotballbanen, ligger idrettshallen. Den strekker seg over to etasjer.
- I tredje etasje på flerbrukshallen blir det kampsportarealer for bryting, boksing og kickboksing.
- I kjelleren kommer det garderober og treningsrom.
- Kontorer, møterom og materialrom er fordelt over flere av etasjene.
Tidsplan
- Februar–oktober 2021: Kravspesifikasjon og anskaffelse av totalentreprenør
- April-oktober 2021: Utflytting fra klubbhuset. Midlertidige lokaler etableres.
- November 2021: Anleggsarbeidene starter. Klubbhuset rives.
- Vår 2024: Ny flerbrukshall er ferdig og klar for overtakelse!